North District 2
About the Community
North District 2 represents a first-of-its-kind intermingling of undergraduate and graduate university students with transfer-bound community college students. Reaching seven stories with seven different floor plans and 1500+ beds, this resources-rich community is designed to break down physical and psychological barriers to access, success, and equity. Rest comfortable and live modern in this new gateway to campus on the north side.
Floor Plans & Pricing
-
Studio (Graduate Students Only)
Unit: 299 sq. ft.
View payment schedule
*Floor plans and rates may vary. -
1 bedroom / 1 bath
Unit: 481 sq. ft.
Bedroom: 143 sq. ft.
View payment schedule
*Floor plans and rates may vary. -
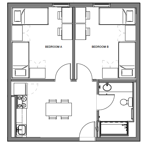
2 bedroom / 1 bath
Unit: 604 sq. ft.
Bedroom A: 163 sq. ft.
Bedroom B: 163 sq. ft.
View payment schedule
*Floor plans and rates may vary. -
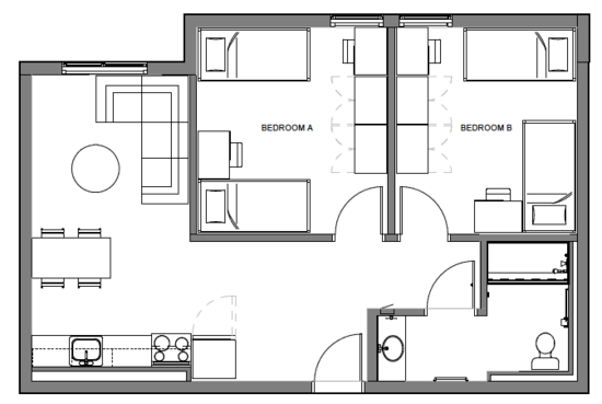
2 bedroom deluxe / 1 bath
Unit: 739 sq. ft.
Bedroom A: 158 sq. ft.
Bedroom B: 150 sq. ft.
View payment schedule
*Floor plans and rates may vary. -
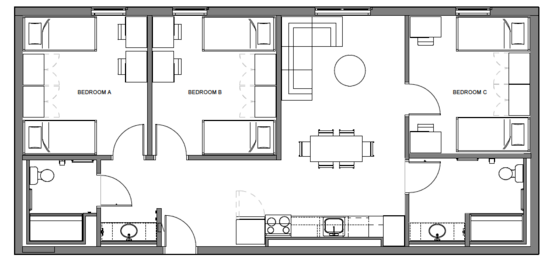
3 bedroom / 2 bath
Unit: 1096 sq. ft.
Bedroom A: 163 sq. ft.
Bedroom B: 163 sq. ft.
Bedroom C: 156 sq. ft.
View payment schedule
*Floor plans and rates may vary. -
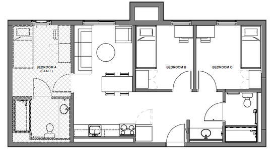
3 bedroom deluxe / 2 bath
Unit: 792 sq. ft.
Bedroom A: 186 sq. ft.
Bedroom B: 100 sq. ft.
Bedroom C: 113 sq. ft.
View payment schedule
*Floor plans and rates may vary. -
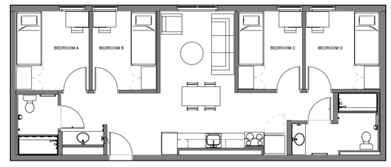
4 bedroom / 2 bath
Unit: 916 sq. ft.
Bedroom A: 101 sq. ft.
Bedroom B: 88 sq. ft.
Bedroom C: 88 sq. ft.
Bedroom D: 101 sq. ft.
View payment schedule
*Floor plans and rates may vary.
Can I Live Here?
| Approved RCCD Students | ✓ ELIGIBLE |
| Incoming Freshman | ✗ INELIGIBLE |
| Continuing Students | ✓ ELIGIBLE |
| Transfer Students | ✓ ELIGIBLE |
| Graduate Students | ✓ ELIGIBLE |
| Student with Family | ✗ INELIGIBLE |
Apartment Amenities
- Fully furnished
- Utilities Included
- High-speed wireless internet
- Single- & double-occupancy rooms available
- Central air & heat
- Dining Plan (Optional)
- Refrigerator
- Stove
- Microwave
Community Features
- Market
- 2.4-acre central park
- Private and group study opportunities
- Fitness room
- Bike storage
- Programs and activities
- Laundry rooms
- 24-hour assistance
- Parking available
- Resident Services Office
- Business center
- Amazon Lockers
- Social/game zones